top of page

ARCHITECTURE DESIGN STUDIO 5

studio5project 1A_Page_01.png

PROJECT 1

studio5project1c_Page_1-min.png

PROJECT 2

PROJECT 1A
(Preliminary Studies)

In this project, we were tasked to do a preliminary study of Medan Pasar, Kuala Lumpur. In individual, the project needs to include 3 components: Site Documentation, Site Analysis, and Precedent Studies, in  an A3 report.

Project 1A - A3 Board

studio5project 1A_Page_01.png

Project 1A
A3 Panel PDF

s3p1a

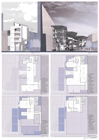
PROJECT 1B &C
(Community Center for Creative City)

For this project, we were tasked to design a Community Center for Creative City based on our own study in Project 1A. 

We were required to present 4 A0 panels as our final outcome.

Narrative Essay

Project 1C A0 Panels

studio5project1c_Page_1-min.png

Project 1C
A0 Panels PDF

s5p1bc
  • Facebook
  • Instagram

Explore My Work.

bottom of page